Fedezd fel a legjobb árakat az ÁrIránytűn Magyarország legújabb és leghatékonyabb ár-összehasonlító platformján. Spórolj okosan, vásárolj tudatosan.
Rozsdamentes falátvezető fólia részére R 2-quot;, hosszúság 300 mm.
Termék részletek
Csere szűrőzsák 100 mic a szezon kezdetére.
Termék részletek
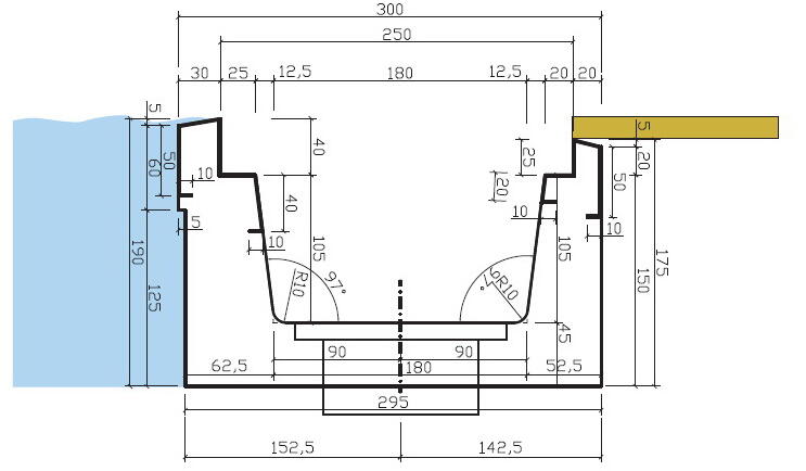
A teljes ár kiszámításához a szükséges mennyiséget folyóméterben adja meg. A kalkulátor kiszámolja a teljes árat és területet m2-ben.
Termék részletek
Komplett medence ellenáramoltató rozsdamentes acél felülettel Pahlén Athlete. A klasszikus ellenáramoltatókhoz képest állítható, speciálisan kialakított fúvókát tartalmaz, amely két irányba irányítja a víz áramlását.
Termék részletek
Acis kiváló minőségű francia fehér LED medencevilágítás, fóliás medencékhez. A csomag tartalmaz 2 fehér előlapot (kör, négyzet), 1 db 2,4m-es kábelt, és egy kábelvédő burkolatot. Színes előlapok külön kaphatók
Termék részletek
3" BM csatlakozó
Termék részletek
1 db kiegészítő kefe Zodiac Tornax Pro OT 2190 / 3230 / 3290 porszívóhoz. Anyaga: Gumi Kérjük, vedd figyelembe, hogy ez a termék higiéniai terméknek minősül és az ASZF-ben foglaltak értelmében, a termék beépítését, használatát követően nem érvényes rá az elállási jog .
Termék részletek
Az AVfol medence fólia két réteg prémium minőségű PVC-ből készült, szövött poliészter hálóval megerősítve.
Termék részletek
A Zodiac TornaX automata medence porszívó vezérlése a vezérlőegység segítségével történik.
Termék részletek
Specifikáció Kapacitás: 8 g/h Medence méret: 20 m3-ig Só koncentráció: 3-100 g/ liter Grafikus kijelző: aktuális klórtermelés, fedés, pH*, mV*, hőmérséklet* Védelem: IP 65 Szuper klórozás: igen Kézi klór szabályozás: igen Lámpák vezérlése (50 W teljesítményig): igen Szivattyú vezérlés: igen Fedés érzékelés: igen Okos üzemmód: igen Klór szabályozás: igen Gáz
Termék részletek
Nyomástűrés: 16 bar Méret: 32 mm X 32 32mm (1"-1") Ivóvíz és öntöző rendszerek kiépítéshez. A termékpalettában megtalálható a toldó- és átmeneti idom, T-idom, könyök, szűkítő, karimás csatlakozó.
Termék részletek
Könnyedén beépíthető vízelvezető, amelyet az épített medencék köré lerakva megoldja a túlfolyások problémáit, valamint a feszített víztükör kialakításának elengedhetetlen kelléke.
Termék részletek
A beton túlfolyó csatorna fóliázott medencékhez készült, vízelvezető rendszer.
Termék részletek
Teszter a Peroxid OX megállapítására. A vízben található peroxid koncentráció mérésére szolgál.
Termék részletek
Az áriránytűn több millió terméket listázunk és folyamatosan bővül a kereskedő partnereink száma.
Te is szeretnéd, ha termékeid megjelennének az áriránytű ajánlatai között?